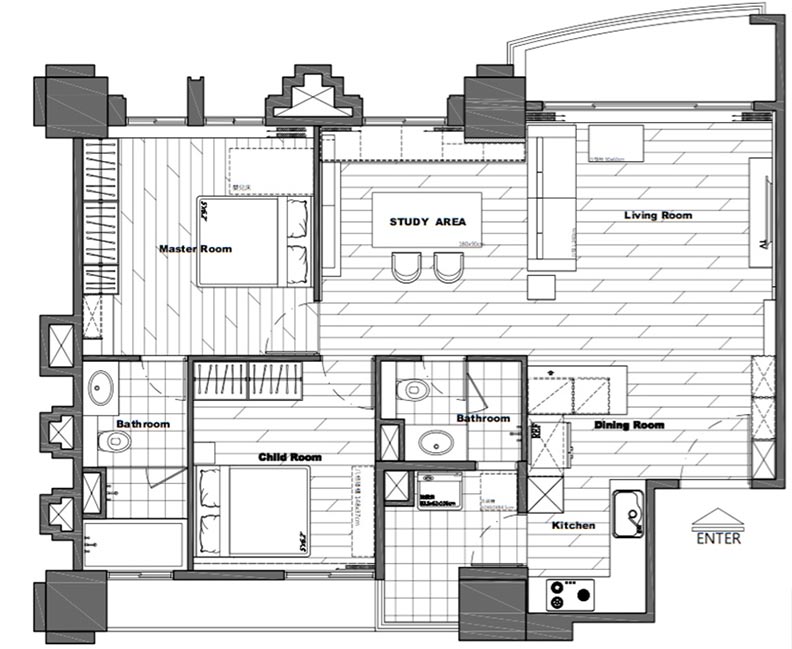
「找對設計師非常重要!」這是黃先生笑著與我們分享的秘訣,從尋找設計師開始,鄰居朋友介紹、網路上開箱文等方法都試過,找了幾家比較後,決定將未來舒適生活託付給有設計貓宅經驗的思維設計。討論過程發現設計師都有針對孩童、5 隻貓咪貼心設計,像是系統櫃倒圓角避免小孩碰撞、木地板讓爬行與走路間較有溫度、中島和廚房間施作柵欄,安全面通通能顧及;也為貓咪們在前後陽台加裝隱形鐵窗、餐桌旁可移動貓跳台,以及餐桌旁臥塌區下方貓砂收納區,再再都顯示屋主需求達到滿足。

施工到完工 2 個月時間,因原本租屋處鄰近購屋地點,夫妻倆都會到場監工,看著自己喜愛的清新北歐宅逐漸有了樣貌,喜悅之情自然不再話下,同時黃先生也補充:「不想讓小孩太早被電視吸引,因此將電視變成單純擺飾,電視牆以素面白色烤漆呈現,也很喜歡設計師搭配的立體花面壁面,比較有特色且不用擔心貓咪刮痕,實在很適合我們家!」
屋主家的基本資料
台中市 / 屋齡 1 年 / 居住時間 半 年 / 室內坪數 30 坪 / 格局 3 房 2 廳 2 衛

喜歡的居家風格?
簡約、北歐、日系,喜愛較清爽風格,將家中規劃成重視舒適北歐風,又因為以前租屋時較缺乏收納空間,當初有將這點考慮進去,風格面以外也重視實用度。
靈感參考來源?
網路資訊、包括 Mobile01 網友開箱文和瀏覽設計公司網頁。
喜歡的居家品牌?
無,較不喜歡品牌化商品,想樹立自己的風格與他人做出區隔。
家具採購來源?
沙發選購自鄰居推薦的沙發工廠,當初也和設計師溝通,選擇較適合家中氛圍的淺灰色澤。另外,家中餐桌、燈具都經由設計師推薦而購入。


推薦品牌或店家?
設計師推薦的愷諺家居,家中實木餐桌就在這裡購買的,非常喜歡。
朋友形容你家是?
溫馨的貓宅,家裡常會有朋友來訪,他們會帶自己小朋友來家裡活動,就算幾個小朋友加上 5 隻貓,開放式空間還是有足夠的場域活動。

最滿意的空間?
開放式客餐廳空間,平常家人和 5 隻貓咪都會在此聚集,也會在沙發、餐桌上使用電腦,只有睡覺時會回到臥房。我們非常重視與家人相處的時光。
最不滿意的空間?
建商附的廚房,空間太小,使用上相對沒那麼方便。
最滿意的家具?
實木餐桌椅,為家中增加不少溫暖氣息。



最開心的事情?
找到一個超棒又負責任的設計師,給家人和寵物一個舒服溫馨的空間!
最後悔的事情?
新成屋沒有辦法進行客變,想更動廚房格局。
如果能夠重來?
如果能重來一定會改買預售屋,就能按照想要的格局進行客變。
給網友的建議?
好的設計師帶你上天堂!不過千金難買早知道,如果能購買預售屋,應該早點讓設計師繪製平面圖進行客變,可以省去日後變更所造成的麻煩與花費,像我們為了擴大公領域而拆除客房兩面隔間牆,雖然值得但也占用不少預算。







設計公司:思維設計 http://www.thinkingdesign.com.tw